Saint Martins Real Estate

powered by Open2view.com
SOLD

Canterbury Area
3
1
N/A
150sqm
N/Asqm
Canterbury Area
proudly marketed by
Richard Green and Michelle Facer
Tall Poppy Canterbury
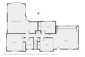
Simply Gorgeous!
No work needed to be done here! Our vendors have lovingly looked after their immaculate three bedroom home, you can see this from the moment you walk in the front door. Nestled on a fully fenced back section away from the road, 16B Wesley Street is an extremely tidy brick, low maintenance home on with a well-established, easily kept garden. A remarkably peaceful and quiet spot which will suit many people looking for that little extra privacy. The north facing, open plan living and dining hosts the newly renovated, stylish kitchen which is the hub of the home. Kept warm during the day with the sun beaming through the aluminium windows, you can switch on the heatpump for those slightly cooler evenings. Three good sized beautifully decorated double bedrooms, the master bedroom has access to the single bathroom with the dual entrance known as the Jack and Jill door. Relaxing in the outside entertainment area, you will enjoy the view of the immaculately maintained garden, many a BBQ has been enjoyed in this great space and I'm sure there will be many more to come! Finished off with the adjoined double garage there is something here for the whole family. There will be particularly strong demand for this high calibre entry level home, suitable for first home buyers, or people wanting to downsize, equally, a very good rental proposition. There will strictly be no private viewings prior to the open home at our vendors request. If you are motivated and are interested in seeing this fabulous home, you will need to make the time to get to the first open home. Call Richard for more information.
Question
Please leave this field blank:
Upload by Wayne Hutchinson
Canterbury